
High-class experience
An elegant design combined with premium building materials gives users a feeling of cleanliness and comfort.

Easy access facilities
Contains toilet safety rails, a one arm faucet, a changing table, an alarm button and a wheelchair ramp.

Stand alone unit
With its built in pump it can be located separately from high capacity toilets which require a pump station.

technical compartment
Features a separate technical compartment allowing for quick and easy service and maintenance.

exceptional reliability
With over 20 years of industry experience our products have been thoroughly tested and developed over time.



Award winning design, environmentally friendly
Jets™ vacuum toilets offer outstanding performance combined with an award winning Scandinavian design offering rental operators and event organizers a higher sanitation standard than ever before. The built in Vacuumarator™ pump only uses 1/10th the water of a traditional toilet and can transport sewage directly into an off-site tank or sewer.
Optimal combination of form and function
The accessible toilet has an extra large room with a wide door and an aluminum ramp. The room contains toilet safety rails with support legs, a one arm faucet, a changing table and an alarm button that notifies the staff on site via the built in IOT sensor and by flashing the exterior lights. The 320 model also contains an easy access shower.
Comfortable every day - all year round
EventCubes are fully insulated with 40 - 60 mm XPS foam (walls, floor and roof) providing a comfortable experience all year round. In addition, the high insulation reduces the amount of energy required for heating. This is especially important during winter when heating is required at all times to prevent frost damage.
Protected against damp, mold and degradation
EventCubes are built strictly from inorganic materials to protect against damp, mold and degradation over time. The inside consists of fiberglass with a hidden pipe feed and wall-mounted fittings, giving the user a feeling of cleanliness and comfort. The smooth surfaces and obstacle-free floor can be cleaned quickly and efficiently.
Award winning design, exceptional reliability
Jets™ vacuum toilets offer outstanding performance combined with an award winning Scandinavian design offering rental operators and event organizers a higher sanitation standard than ever before. The built in Vacuumarator™ pump only uses 1/10th the water of a traditional toilet and can transport sewage directly into an off-site tank or sewer.
Optimal combination of form and function
The accessible toilet has an extra large room with a wide door and an aluminium ramp. The room contains toilet safety rails with support legs, a one arm faucet, a changing table and an alarm button that notifies personel on site via the built in IOT sensor and by flashing the exterior lights. The 320 model also contains an easy access shower.
Comfortable every day - all year round
EventCubes are fully insulated with 40 - 60 mm XPS foam (walls, floor and roof) providing a comfortable experience all year round. In addition, the high insulation reduces the amount of energy required for heating. This is especially important during winter when heating is required at all times to prevent frost damage.
Protected against damp, mold and degradation
EventCubes are built strictly from inorganic materials to protect against damp, mold and degradation over time. The inside consists of fiberglass with a hidden pipe feed and wall-mounted fittings, giving the user a feeling of cleanliness and comfort. The smooth surfaces and obstacle-free floor can be cleaned quickly and efficiently.

Image copyright: Jets Vacuum AS
Vacuum toilets use air instead of water to transport sewage. This advantage significantly reduces water usage. Logistical costs for water transport and sewage handling are lower, and a significant reduction in man hours saves you time and money. Furthermore, the airflow vents away odors and reduces the risk of spreading airborne pathogens improving overall hygiene.
A reduction in water usage not only benefits the bottom line and the environment, it also helps to ensure a reliable sanitation service throughout the whole event. With traditional toilets local water supply networks often can't maintain sufficient water pressure during peak hours at large events. This means it takes longer for toilets to refill and the risk of clogging increases as queues grow longer.


All accessible toilets (except the double unit) come with a built in pump that can transport wastewater directly into an off-site tank or sewer. The units can therefore be placed separately from high capacity toilets that rely on a dedicated pump station for maximum efficiency. It gives rental operators and event organizers the ability to place special toilets such as luxury toilets and accessible toilets in isolated areas, for example backstage and easy access zones.






EventCubes come with built-in sensors capable of sending and receiving data. We are currently developing software that allows you to take full advantage of this technology giving you and your team the best experience while maximizing productivity. The software will provide a complete status overview of all operating units plus post‐event reports such as user statistics, water usage and up-time which can be used as documentation for finished events and for preparation of the next. Learn more at www.futedo.com.
Respond faster
Receive a notification if a unit requires inspection. For example, if a room needs cleaning or toilet paper, there's a vacuum leakage or a room has been occupied for much longer than usual.

Compare data
Monitor and compare the effectiveness of different layouts from data collected by the sensors. Use real data to optimize your layout, reduce queuing and serve your customers better.

Better workflow
Use our smartphone app as a checklist for your team. Get an easy overview of what units have been cleaned, when the toilet paper was last changed and if all units are locked after closing.

Happier guests
"The toilet system is more important than the sound system" - Sweden Rock - A well-functioning sanitation system greatly increases guests' satisfaction and allows vendors to sell more.





EventCubes were developed using the expertise we have gathered from over 20 years of supplying high end trailers and cabins for the construction and event industry. We use premium components and materials to ensure that our products are exceedingly reliable with an exceptionally long lifetime. As the Nordics' leading manufacturer, we are able to put some of the best products on the market direct from suppliers. A direct relationship with our suppliers means that we can work closely with them to develop parts that optimize functionality, design and durability.
Heat galvanized steel chassis with pockets


Solid cast curved roof with water drainage


Premium fiberglass panels with XPS foam


High performance polyurea floor coating


Stainless steel couplings and door handles


Inorganic materials prevent degradation


internal steel frame holding toilets


sturdy anodized aluminum profiles


Vacuum lines reinforced with steel


Heat galvanized steel chassis with pockets

Heat galvanized steel
chassis with pockets

SOLID CAST CURVED ROOF
WITH WATER DRAINAGE

Solid cast curved roof with water drainage

Premium fiberglass panels with XPS foam

PREMIUM fiberglass PANELS 
WITH XPS FOAM

HIGH PERFORMANCE POLYUREA 
FLOOR COATING

High performance polyurea floor coating

Stainless steel couplings and door handles

STAINLESS STEEL COUPLINGS
AND DOOR HANDLES

INORGANIC MATERIALS
PREVENT DEGRADATION

Inorganic materials prevent degradation

internal steel frame holding toilets

Internal steel frame
holding toilets

Sturdy anodized
aluminum profiles

sturdy anodized aluminum profiles

Vacuum lines reinforced with steel

Vacuum lines
reinforced with steel

Heat galvanized steel chassis with pockets

Heat galvanized steel chassis with pockets
Solid cast curved roof with water drainage

SOLID CAST CURVED ROOF WITH WATER DRAINAGE
Premium fiberglass panels with XPS foam

PREMIUM fiberglass PANELS WITH XPS FOAM
High performance polyurea floor coating

HIGH PERFORMANCE POLYUREA FLOOR COATING
Stainless steel couplings and door handles

STAINLESS STEEL COUPLINGS AND DOOR HANDLES
Inorganic materials prevent degradation

INORGANIC MATERIALS PREVENT DEGRADATION
internal steel frame holding toilets

Internal steel 
frame holding toilets
sturdy anodized aluminum profiles

Sturdy anodized
aluminum profiles
Vacuum lines reinforced with steel

Vacuum lines reinforced
with steel

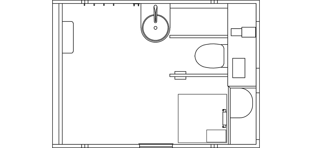
All stand alone units come with a built in pump that can transport wastewater directly into an off-site tank or sewer. Additionally, many units also feature a water supply tank and sewage tank. The units can therefore be placed separately from high capacity toilets that rely on a dedicated pump station for maximum efficiency. It gives rental operators and event organizers the ability to place units in isolated areas, for example backstage and easy access zones. If you have any questions feel free to contact us.
External: 320 x 228 cm
Weight: 700 kg
Capacity: 1 person
Wall-mounted Jets™ vacuum toilet
Toilet safety rails with support legs
Hand basin with one arm faucet
Compact laminate work surface
Changing table
Alarm button
Aluminum ramp
Technical compartment
Built in Vacuumarator™ pump + tank
230 V - 16 A CEE inlet
On-demand water heater
Self-dimming LED light
750 W heater, 200 W heater
Water and door sensor
Electric switchboard

All stand alone units come with a built in pump that can transport wastewater directly into an off-site tank or sewer. Additionally, many units also feature a water supply tank and sewage tank. The units can therefore be placed separately from high capacity toilets that rely on a dedicated pump station for maximum efficiency. It gives rental operators and event organizers the ability to place units in isolated areas, for example backstage and easy access zones. If you have any questions feel free to contact us.
External: 320 x 228 cm
Weight: 700 kg
Capacity: 1 person
Wall-mounted toilet (regular toilet)
Toilet safety rails with support legs
Hand basin with one arm faucet
Compact laminate work surface
Changing table
Alarm button
Aluminum ramp
Technical compartment
Built in macerator pump
230 V - 16 A CEE inlet
On-demand water heater
Self-dimming LED light
750 W heater, 200 W heater
Water and door sensor
Electric switchboard

All stand alone units come with a built in pump that can transport wastewater directly into an off-site tank or sewer. Additionally, many units also feature a water supply tank and sewage tank. The units can therefore be placed separately from high capacity toilets that rely on a dedicated pump station for maximum efficiency. It gives rental operators and event organizers the ability to place units in isolated areas, for example backstage and easy access zones. If you have any questions feel free to contact us.
External: 320 x 228 cm
Weight: 800 kg
Capacity: 1 person
Wall-mounted Jets™ vacuum toilet
Toilet safety rails with support legs
Hand basin with one arm faucet
Accessible shower
Changing table
Alarm button
Aluminum ramp
Technical compartment
Built in Vacuumarator™ pump + 2 tanks
400 V - 16 A CEE inlet
30 L water heater
Self-dimming LED light
750 W heater, 200 W heater
Water and door sensor
Electric switchboard

External: 420 x 228 cm
Weight: ??? kg
Capacity: 2 people
2 x wall-mounted Jets™ vacuum toilet
2 x toilet safety rails with support legs
2 x hand basin with one arm faucet
2 x changing table
2 x alarm button
2 x aluminum ramp
Technical compartment
Tank to maintain vacuum
230 V - 16 A CEE inlet
Self-dimming LED light
2 x 750 W heater, 200 W heater
2 x water and door sensor
Electric switchboard
Disclaimer: We are constantly seeking to improve our products and services and as a result all specifications are subject to change.

Products
High capacity toilet - doubleHigh capacity toilet - singleHigh capacity toilet - trailerLuxury toiletAccessible toiletPump stationFollow us
Scanvogn A/S, Hovedvejen 50, DK-9850 Hirtshals
CBR: DK 33958358  |  P: +45 98977200  |  E: info@scanvogn.dk
Scanvogn A/S
Hovedvejen 50
DK-9850 Hirtshals
CBR: DK 33958358
P: +45 98977200
E: info@scanvogn.dk